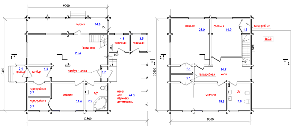
Площадь дома – 185 кв.м.
В стандартную комплектацию включены:
- сруб – профилированный брус;
- крыша – металло-черепица;
- окна – деревянные профили с двухкамерными стеклопакетами;
- внутренние двери – искусственный шпон;
- входная дверь – металлическая;
- разводка газ, электросети, воды, отопления;
- индивидуальная скважина;
- канализация, отвод воды из дома в септик.
- пристроенный к дому навес для автомобиля.
Дом без отделки со всеми коммуникациями:
- фундамент;
- коробка с внутренними перегородками;
- кровля – металло-черепица;
- скважина;
- септик;
- ввод коммуникаций в дом (вода, электричество).



